VP Thiết Kế: Kiều Mai - Phúc Diễn - Bắc Từ Liêm - Hà Nội

Trụ Sở Nhà máy: Sơn Đồng - Hoài Đức - Hà Nội

Hotline: 0343328666

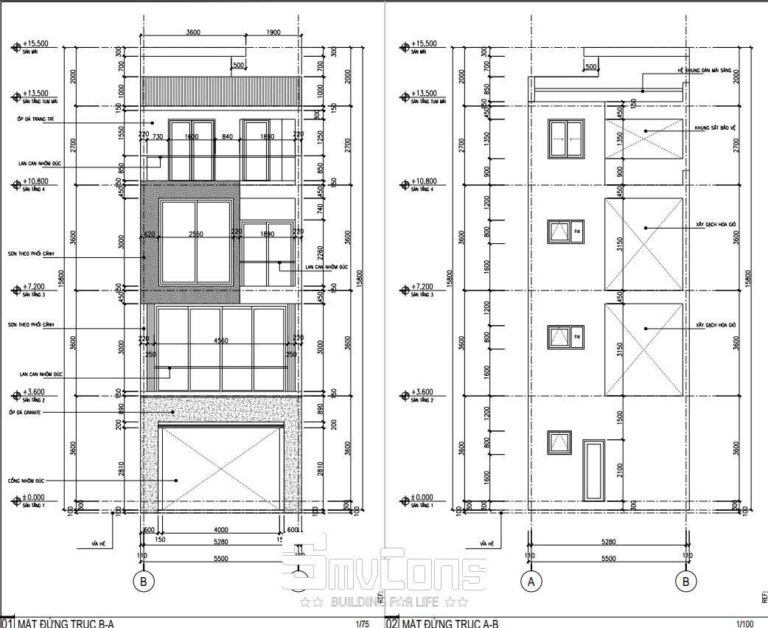
Dự án xây mới nhà phố Mr. Hiền – Nghệ An

z6878232893540_95fd326d9671d23d7c56b1ec8f40379c z6878233016728_f400feaba3a47a40682b944e90c2bb35 z6878232767454_7ee7cfa0167a70238f6749c5771cbacd z6878233131480_b658472efb15ad4586e4e9aca4771e52 khách 2_result z6878232530504_edd518ebe732281ad68ba08063395b97 khách 3_result khách 4_result khách 5_result khách 6_result khách 7_result khách 8_result khách 9_result khách 10_result khách 11_result Bếp 2_result Bếp 3_result Bếp 4_result Bếp 6_result Ngủ 1. Ngủ 1... Bếp 1_result Ngủ 1 Ngủ 1..
PALM GARDEN | THIẾT KẾ KIẾN TRÚC & NỘI THẤT ĐỒNG BỘ
PALM GARDEN | THIẾT KẾ KIẾN TRÚC & NỘI THẤT ĐỒNG BỘ CHO KHÔNG GIAN SỐNG ĐẲNG CẤP
Thiết kế Nội Thất Gỗ Óc Chó V'AN VILLA - HƯNG YÊN
V'AN VILLA - HƯNG YÊN | KHI GỖ ÓC CHÓ MỞ RA CHUẨN MỰC SỐNG
BT Ánh Sáng
Biệt Thự Ánh Sáng - Gia Lâm | Không gian kiến trúc và nội thất tinh tế
Dự án Anh Thăng - Quốc Oai | Thiết kế & Thi công trọn gói từ kiến trúc đến nội thất
Dự án Anh Thăng - Quốc Oai | Thiết kế trọn gói từ kiến trúc đến nội thất
Biệt Thự Ngọc Trai - Biểu Tượng Sang Trọng Giữa Lòng Vinhomes Ocean Park
Biệt Thự Ngọc Trai - Biểu Tượng Sang Trọng Giữa Lòng Vinhomes Ocean Park

THÔNG TIN DỰ ÁN

Kiểu nhà:

Nhà Phố

Chủ đầu tư:

Mr. Hiền

Vị trí:

Nghệ An

Diện tích:

100m2

Chia sẻ:

Không phải ai xây nhà cũng bắt đầu đúng cách.
Nhưng với anh Hiền, mọi thứ được định hình ngay từ đầu bằng một lựa chọn rõ ràng:
Làm trọn gói – kiểm soát toàn bộ từ kiến trúc đến nội thất.

Tại Nghệ An, dự án nhà phố của anh Hiền được SMVCONS triển khai theo mô hình tổng thầu kiến trúc & nội thất, nơi mọi yếu tố không tồn tại riêng lẻ, mà được xây dựng trong cùng một tư duy thống nhất.

KIẾN TRÚC – NỀN TẢNG CỦA KHÔNG GIAN SỐNG

Công trình được định hướng theo phong cách hiện đại, tối ưu công năng và phù hợp với đặc thù nhà phố.
Tỷ lệ mặt tiền, bố cục không gian và hệ ánh sáng được nghiên cứu kỹ lưỡng nhằm đảm bảo sự thông thoáng và tính thẩm mỹ lâu dài.

NỘI THẤT – HOÀN THIỆN GIÁ TRỊ SỐNG

Không dừng lại ở phần “xây”, SMVCONS tiếp tục triển khai thiết kế & thi công nội thất đồng bộ:

– Không gian phòng khách – bếp liên kết mạch lạc
– Phòng ngủ tối ưu trải nghiệm cá nhân
– Vật liệu được lựa chọn theo tiêu chuẩn thẩm mỹ và độ bền

Tất cả tạo nên một tổng thể hài hòa – nơi kiến trúc và nội thất bổ trợ cho nhau, không tách rời.

GIÁ TRỊ CỦA TỔNG THẦU

Việc triển khai trọn gói giúp công trình:
– Đồng bộ từ bản vẽ đến thực tế
– Kiểm soát chi phí ngay từ đầu
– Hạn chế tối đa phát sinh
– Đảm bảo tiến độ và chất lượng

Một ngôi nhà đẹp không chỉ nằm ở hình thức,
mà nằm ở cách nó được tạo ra ngay từ những bước đầu tiên.

Nhà phố Mr. Hiền – Nghệ An không chỉ là một công trình xây mới,
mà là một hành trình kiến tạo không gian sống được kiểm soát trọn vẹn từ A–Z.

📩 Nếu bạn đang chuẩn bị xây nhà hoặc cải tạo,
hãy để SMVCONS đồng hành với giải pháp tổng thầu kiến trúc & nội thất – làm đúng ngay từ đầu, để mọi thứ về sau luôn đúng.

𝐒𝐌𝐕𝐂𝐎𝐍𝐒 | 𝐁𝐔𝐈𝐋𝐃𝐈𝐍𝐆 𝐅𝐎𝐑 𝐋𝐈𝐅𝐄

Chúng tôi không chỉ xây nhà, chúng tôi kiến tạo cuộc sống.

(SMVCONS – Thành viên của Sao Mộc Vương Group (SMV Group))

📞 LIÊN HỆ NGAY ĐỂ ĐƯỢC TƯ VẤN CHUYÊN SÂU:

Đường dây nóng: 0343328666 (Mr. Đức)

🏭 Trụ sở: Nhà máy và VP : Sơn Đồng – Hoài Đức – Hà Nội

Theo dõi thêm tại Fanpage: https://www.facebook.com/smvcons

THÔNG TIN DỰ ÁN

Kiểu nhà:

Chủ đầu tư:

Mr. Hiền

Vị trí:

Nghệ An

Diện tích:

100m2